Fachbereiche Besucher- und Therapiezentrum
Besucher- und Therapiezentrum (BTZ)
Das Psychiatrische Zentrum AR konzentriert auf dem Areal Krombach in Herisau die Fachtherapien und die Empfangszone in einem Neubau. Das zukünftige Besucher- und Therapiezentrum (BTZ) fasst die Tagesklinik, Fach- und Bewegungstherapie sowie den zentralen Empfang für Patientinnen und Patienten, Besuchende und Gäste zusammen und übernimmt damit eine zentrale Rolle für das ambulante Leistungsangebot.
Der Baustart erfolgte im Januar 2024. Die Fertigstellung ist für Sommer 2025 geplant.
Kontakt
Spitalverbund Appenzell Ausserrhoden
Unternehmenskommunikation
Krombach 3
9100 Herisau
Tel. 071 353 81 11
kommunikation@svar.ch
Gesamtleistungswettbewerb
Der Spitalverbund Appenzell Ausserrhoden (SVAR), zu welchem das Psychiatrische Zentrum Appenzell Ausserrhoden (PZA) gehört, hat Ende Oktober 2021 einen einstufigen Gesamtleistungswettbewerb im selektiven Verfahren für den Neubau des Besucher- und Therapiezentrums abgeschlossen. Ziel war es, hinsichtlich Architektur, Städtebau, Betrieb, Ökonomie und Ökologie ein optimiertes Projekt zu erlangen, welches das gesetzte Kostenziel einhaltet und im vorgegebenen Zeitraum realisiert werden kann. Am Wettbewerb haben sechs Totalunternehmer mit ihren Planerteams teilgenommen. Mit Rang 1 prämiert wurde das Projekt «Nordstern» von Blumer-Lehmann AG.
Beschreibung BTZ
Das Besucher- und Therapiezentrumübernimmt in zweierlei Hinsicht eine zentrale Rolle. Einerseits fungiert es als zentraler Ankunftsort für sämtliche Anspruchsgruppen, welche das PZA aufsuchen möchten. Damit wird das Gebäude zum «Gesicht» des PZA gegenaussen und repräsentiert das modernepsychiatrische und psychotherapeutische Angebot. In zweiter Hinsicht soll das Gebäude zur Klärung der räumlichen Situation im Bereich des Haus 6 und Haus 8 verhelfen. Das BTZ wird zum räumlichen Bindeglied zwischen Ankunftsort und dem übrigen Areal.
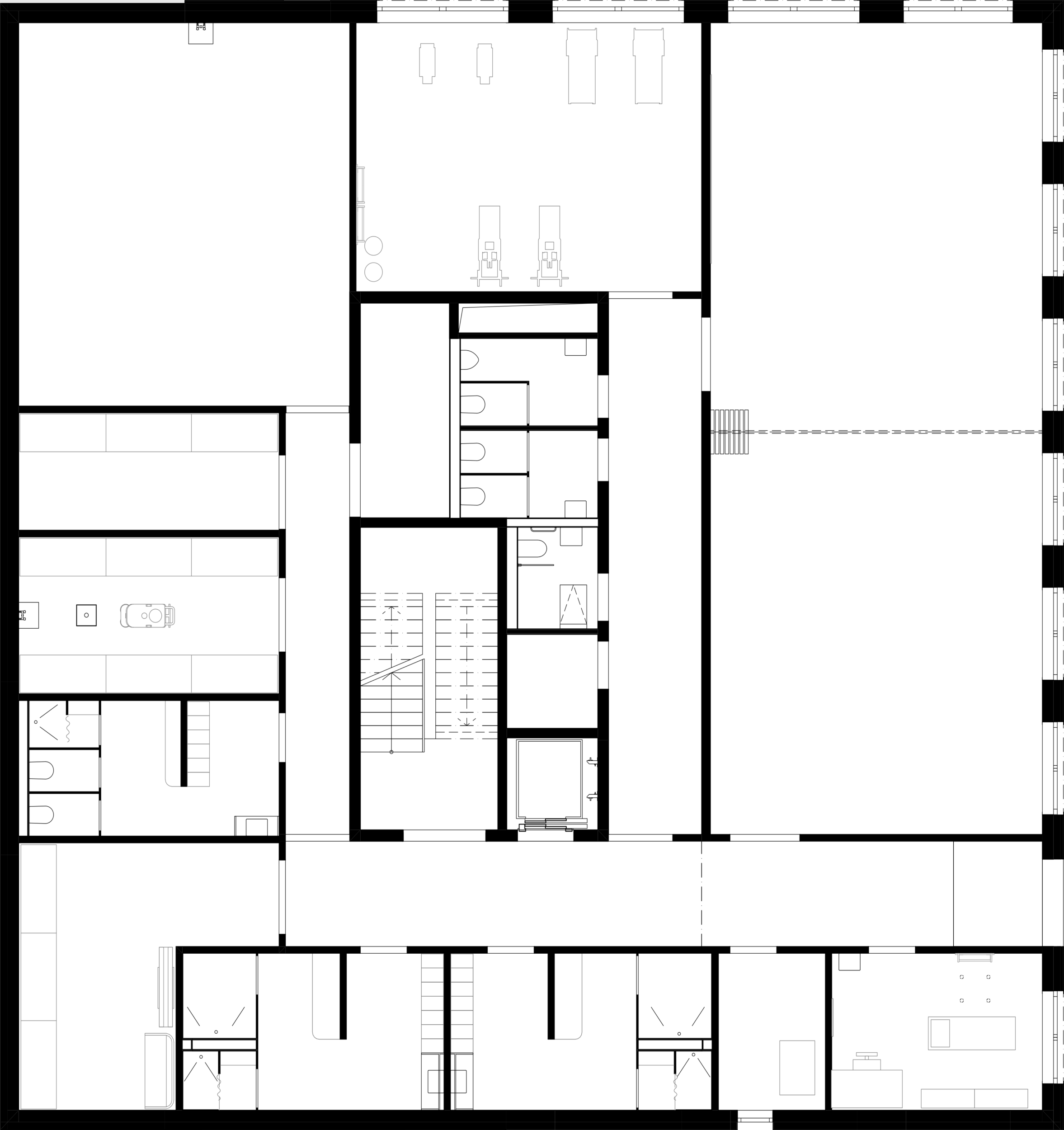
Ausgerichtet auf die Gesamtanlage und klar erkennbar für Ankommende, soll sich im Erdgeschoss der Empfang sowie die Triage befinden. Angehängt an den Empfang ist die Tagesklinik mit der, für die Patientinnen und Patientenvorbehaltenen Terrasse.
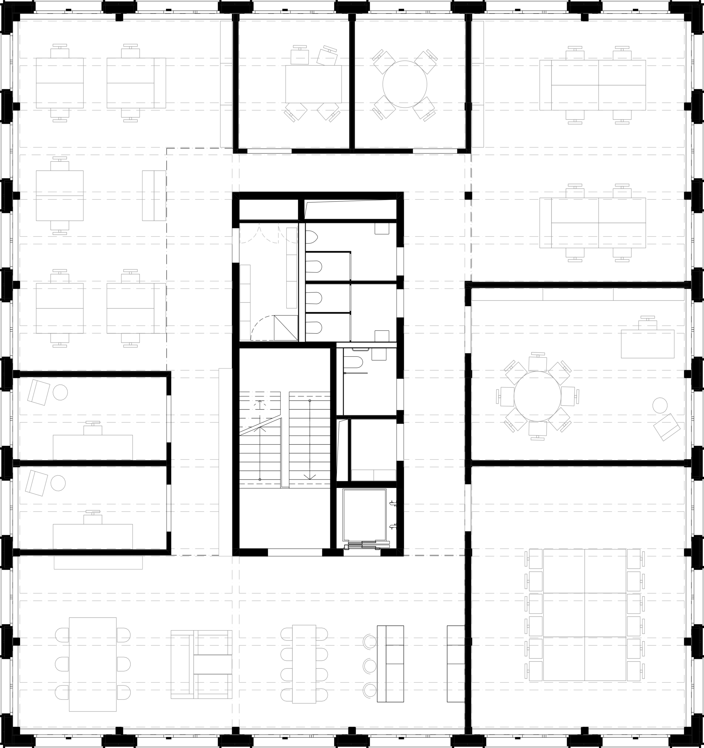
Im ersten und zweiten Obergeschossbefinden sich die zentralisierten Büros von verschiedenen Ärztinnen und Ärzten sowie Psychologinnen und Psychologen, weiteren Berufsgruppen sowie der Leitung des PZA.
Die Auflösung der Einzelbüros zugunsten von modernen Gruppenbüros ermöglicht einen fachübergreifenden und unterschwelligen Austausch, was in erster Linie den behandelnden Patientinnen und Patienten zugutekommt. Im 3.Obergeschoss sind die verschiedenen Fachtherapien
untergebracht. Das Angebot wird durch die im Untergeschoss befindenden Bewegungstherapieräumen mit den dazugehörigen Umkleidebereichen ergänzt. Für die Bewegungstherapie ist vorgelagert im Aussenraum eine Aufenthaltszone vorgesehen.
Baustellenkamera (Live)
Baustellenkamera (Zeitraffer)
Aussenbilder
Innenbilder
Grundrisse
Spatenstich